Alicia Reyes
Menu
Skip to content
Home
RADD
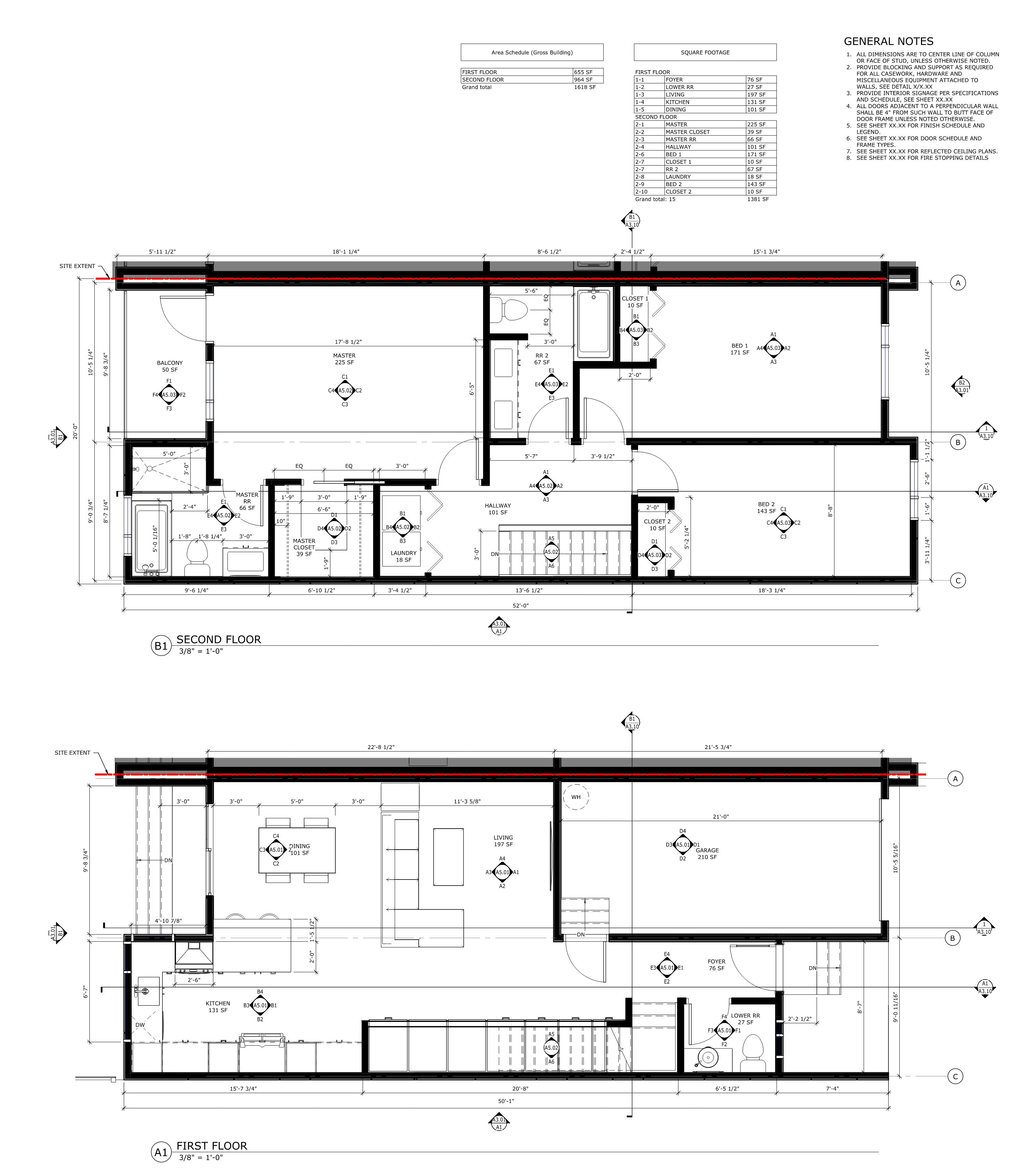
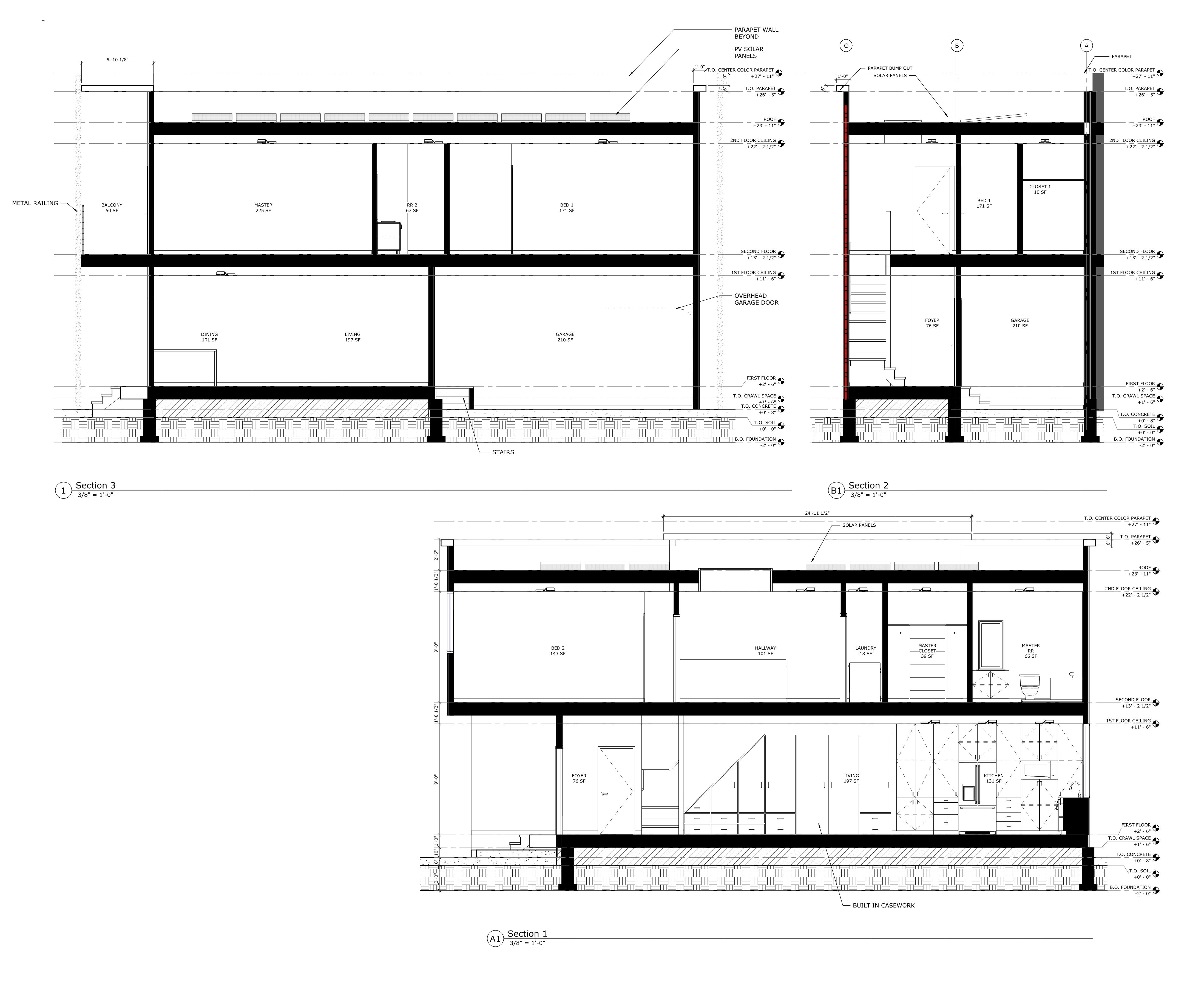
SAC TRAIL TOWNHOMES
Related
Leave a comment
Cancel reply
Δ
Post navigation
←
GPOL THESIS
LIFESTYLE CENTER
→
Comment
Alicia Reyes
Sign up
Log in
Copy shortlink
Report this content
Manage subscriptions
Loading Comments...
Write a Comment...
Email (Required)
Name (Required)
Website