





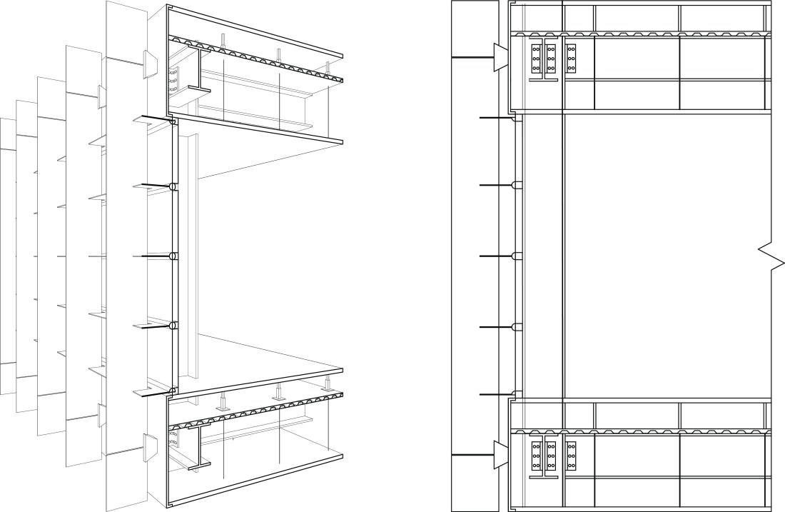
The concept of this design was to create urban infill on one side of a team campus. I was given the opportunity to take two separate labs, the Uber lab and a research lab, and join them for a collaborative work environment. The entire lower level is dedicated to shops that mimic the surrounding area except for the lobby/entrance to the facility. The second floor is an outdoor private rooftop balcony podium level separating the public from the private areas. The collaboration areas are set in-between the labs to promote teamwork. The labs protrude out in order to connect to the surrounding area and give the opportunity to be an icon that people can see down the busy 9th avenue and want to engage.